CÔNG TY TNHH KINH DOANH NAM PHÁT
  • Trang chủ
  • Giới thiệu
  • LĨNH VỰC HOẠT ĐỘNG
    • SẢN XUẤT CƠ KHÍ
    • GIAO THÔNG ĐƯỜNG BỘ
    • THI CÔNG SÂN THỂ THAO
    • SƠN EPOXY NHÀ XƯỞNG
  • Dự án
    • SẢN XUẤT CƠ KHÍ
    • THI CÔNG GIAO THÔNG
    • THI CÔNG SÂN THỂ THAO
    • THI CÔNG EPOXY
  • TIN TỨC
  • Liên hệ
CÔNG TY NAM PHÁT KÍNH CHÀO QUÝ KHÁCH
Địa chỉ: 870 Tỉnh Lộ 43, Khu Phố 1, Phường Tam Bình, Thành phố Hồ Chí Minh, Việt Nam
CSKH
8:00 - 17:00
CÔNG TY TNHH KINH DOANH NAM PHÁT
  • Trang chủ
  • Giới thiệu
  • LĨNH VỰC HOẠT ĐỘNG
    • SẢN XUẤT CƠ KHÍ
    • GIAO THÔNG ĐƯỜNG BỘ
    • THI CÔNG SÂN THỂ THAO
    • SƠN EPOXY NHÀ XƯỞNG
  • Dự án
    • SẢN XUẤT CƠ KHÍ
    • THI CÔNG GIAO THÔNG
    • THI CÔNG SÂN THỂ THAO
    • THI CÔNG EPOXY
  • TIN TỨC
  • Liên hệ
0917787428

GIAO THÔNG ĐƯỜNG BỘ

Trang chủ/ LĨNH VỰC HOẠT ĐỘNG / GIAO THÔNG ĐƯỜNG BỘ
Báo giá cột cần vươn
08
Tháng 03

Báo giá cột cần vươn

08/03/2026 | Đăng bởi admin
Cột Cần Vươn giao Thông
08
Tháng 03

Cột Cần Vươn giao Thông

08/03/2026 | Đăng bởi admin
Trụ đèn chiếu sáng
22
Tháng 02

Trụ đèn chiếu sáng

22/02/2026 | Đăng bởi admin
Trụ đèn chiếu sáng hay trụ đèn cao áp (trụ đèn đường) được sử dụng để lắp đặt đèn cao áp chiếu sáng cho các khu vực rộng lớn như đường phố, sân vận động, bến cảng, sân bay, công viên,…. Trụ đèn chiếu sáng thường được làm bằng thép mạ kẽm nhúng nóng để chống oxi hóa, chống gỉ và bền bỉ theo thời gian.
Cột Đèn Giao Thông Chớp Vàng
22
Tháng 02

Cột Đèn Giao Thông Chớp Vàng

22/02/2026 | Đăng bởi admin
Cột đèn giao thông chớp vàng là một thiết bị báo hiệu giao thông quen thuộc, đóng vai trò quan trọng trong việc đảm bảo an toàn cho người tham gia giao thông.
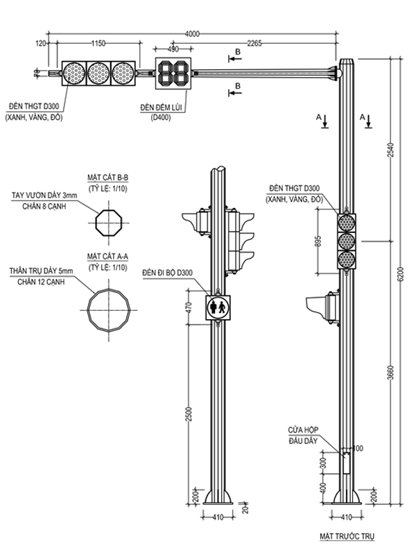
Cột Đèn Tín Hiệu Giao Thông
22
Tháng 02

Cột Đèn Tín Hiệu Giao Thông

22/02/2026 | Đăng bởi admin
Cột đèn tín hiệu giao thông, hay còn gọi là cột đèn giao thông, là thiết bị không thể thiếu tại các ngã tư, ngã ba đường phố. Chúng đóng vai trò quan trọng trong việc điều tiết giao thông, đảm bảo an toàn cho người tham gia giao thông và góp phần xây dựng văn hóa giao thông.
  • Prev
  • 1
  • 2
  • 3
  • 4

GIAO THÔNG ĐƯỜNG BỘ mới

Trụ đèn đa giác

Trụ đèn đa giác

Sun 03, 2026
Trụ đèn bát giác

Trụ đèn bát giác

Sun 03, 2026
Trụ Đèn Nâng Hạ

Trụ Đèn Nâng Hạ

Sun 03, 2026
CẦN ĐƠN THÔNG DỤNG

CẦN ĐƠN THÔNG DỤNG

Sun 03, 2026
CẦN ĐÈN BTLT-NP

CẦN ĐÈN BTLT-NP

Sun 03, 2026

GIAO THÔNG ĐƯỜNG BỘ nổi bật

CÔNG TY TNHH KINH DOANH NAM PHÁT

Địa chỉ: 870 Tỉnh Lộ 43, Khu Phố 1, Phường Tam Bình, Thành phố Hồ Chí Minh, Việt Nam

Mã số thuế: 0314663181

Đại diện là: Ông Vũ Văn Nam Chức vụ: Giám đốc

Hotline : 0917 787 428

Email : tongthauson.sg@gmail.com

VỀ CHÚNG TÔI

  • Giới thiệu
  • Thiết kế nội thất
  • Thi công nội thất
  • Báo giá
  • Báo giá hoàn thiện nhà xây thô
  • Thiết kế nội thất Vinhomes Grand Park

CHÍNH SÁCH

  • Vận chuyển & lắp đặt
  • Chính sách thanh toán
  • Bảo mật thông tin
  • Giải quyết khiếu nại
  • Tuyển dụng

GG MAP NAM PHÁT

© 2026 CÔNG TY TNHH KINH DOANH NAM PHÁT

GIAO THÔNG ĐƯỜNG BỘ GIAO THÔNG ĐƯỜNG BỘ
0917787428